その他借りたい

上京区 五辻町【貸ビル】 賃料495,000円

その他

物件概要

所在地
[ 地図 ]
京都市上京区五辻通大宮西入五辻町 80-1
交通地下鉄烏丸線 「今出川」 駅 徒歩17分
京福北野線 「北野白梅町」 駅 徒歩20分
市バス 『今出川浄福寺』 停 徒歩3分
賃料495,000円(税込み)
管理費/共益費
敷金/保証金【保証金】1,500,000円
礼金/償却費【保証金返還率】・1年未満の解約の場合:返還なし ・1年以上5年未満の解約の場合:40%返還 ・5年以上10年未満の解約の場合:80%返還 ・10年以上の解約の場合:100%返還
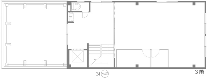
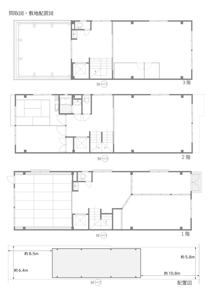
建物面積(公簿)254.24㎡(約77.11坪) 1階:94.64㎡、2階:94.64㎡、3階:64.96㎡
契約形態普通賃貸借契約
契約期間3年
更新料110,000円(税込み)
損害保険等火災保険:要加入、保証会社:要加入
現況空家
引渡時期即可能(代金清算後)
取引態様仲介
備考■飲食業はご相談ください ■1棟 3フロア
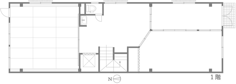
■ 延床面積254.24㎡(約77.11坪) ■ 各階に洗面台・トイレ有
■ 土地面積221.78㎡(約67.08坪) 
■ 普通車なら駐車4台可能(約5.8m×約10.8m)
■ ルーフバルコニーからの眺望良好(京都五山送り火「左大文字」、比叡山の眺望有)
■ 五辻通に面す(京都市道、幅員約6.5m)南向き
■ 本隆寺 西隣 ■ 普通賃貸借契約
物件番号:251002

この物件をWebで見る
https://suzaku-re.co.jp/39728/

QRコード
外観
駐車スペース(普通車なら4台駐車可能です)
前面道路(五辻通)東から
前面道路(五辻通)西から

1階 部分(裏庭あり)

1階 間取図
玄関(玄関土間) 南側から
玄関(玄関土間) 北側から
1階 南(玄関土間横) 南側から
1階 南(玄関土間横) 北側から
1階 北 南側から
1階 北 北側から
裏庭
1階 中 南側から
1階 洗面台・トイレ
敷地配置図

2階 部分

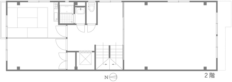
2階 間取図
2階 南 北側から
2階 南 南西側から
2階 北・東
2階 北・西
2階 中 南側から
2階 洗面台・トイレ  浴室も有

3階 部分(ルーフバルコニーあり)

3階 間取図
3階 南 北側から南東方向
3階 南 北側から南西方向
3階 南 南西側から北東方向
3階 南 南東側から北西方向
3階 中 南側から北東方向
3階 洗面台・トイレ
ルーフバルコニー 北・東側は本隆寺境内
ルーフバルコニーからの眺望(京都五山送り火、左大文字を望む)
ルーフバルコニーからの眺望(京都五山送り火、左大文字を望む)ズーム
ルーフバルコニー 眺望(本隆寺境内、比叡山を望む)
外観
このページを印刷

この物件のお問い合わせ

    お名前(必須)

    Eメール(必須)

    電話番号(必須)

    連絡希望時間帯

    郵便番号

    都道府
    県市区町村

    町丁目番地

    建物名部屋番号

    お問い合わせの内容をチェックしてください(必須)

    ご希望ご要望

    このサイトはreCAPTCHAによって保護されており、Googleのプライバシーポリシー利用規約が適用されます。

    シェアする
    タイトルとURLをコピーしました