買いたい戸建て(新築・中古)その他

右京区 京北周山町上代 【中古一戸建】【店舗付き住宅】 1,580万円

買いたい

物件概要

所在地
[ 地図 ]
京都市右京区京北周山町上代 1-1、1-7
交通JR「京都」駅 バス1時間30分、西日本JRバス「周山」停 徒歩2分
JR「円町」駅 バス1時間7分、西日本JRバス「周山」停 徒歩2分
価格1,580万円
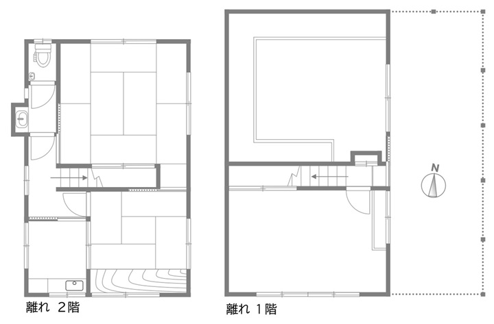
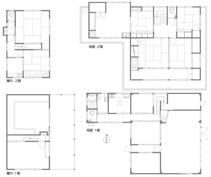
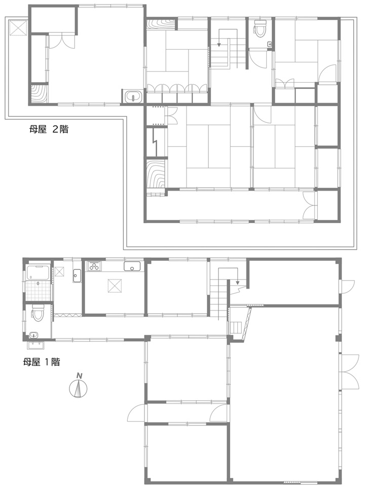
建物面積■建物①母屋 延床面積:(公簿)201.40㎡、増築未登記部分:約20.6㎡  ■建物②離れ (公簿)延床面積:124.08㎡ <現況:約118.75㎡ ※駐車場部分約29.2㎡含む>
土地面積公簿)392.75㎡(約118.80坪)
築年月■建物①母屋:1977年(昭和52年)10月 ■建物②離れ:1981年(昭和56年)3月
間取り■建物①母屋:8DK+店舗・倉庫 ■建物②離れ:3K+倉庫
建物構造■建物①母屋:鉄骨・木造瓦葺2階建 ■建物②離れ:木造瓦葺2階建
駐車場有(普通車3台程度可能)
土地権利所有権
地目宅地
接道状況■東側:幅員約8.0m公道に間口約12.5m接道 ■南側:幅員約2.9m~3.1m公道に間口約27.8m接道
建ぺい率60%
容積率200%
用途地域指定なし
都市計画都市計画区域外
現況空家
引渡時期相談
取引態様仲介
備考■徒歩5分(400m)以内にスーパーマーケット、道の駅、銀行、郵便局、区役所(総合庁舎)、警察署、大堰川、弓削川があります。
■南東角地 ■店舗・住宅
■土地(公簿)382.75㎡(約118.80坪)
■建物①母屋 延床面積:201.40㎡、増築未登記部分:約20.6㎡
■建物②離れ 延床面積:124.08㎡ <現況:約118.75㎡ ※駐車場部分約29.2㎡含む>
【近隣施設等】
●スーパーマーケット サンダイコー/約150m
●道の駅 ウッディ京北/約150m
●周山郵便局/約80m
●京北交番/約350m
●京都市 京北合同庁舎/約240m
●京都銀行 北桑支店/約250m
●京北 小・中 学校/約260m
物件番号:251001

この物件をWebで見る
https://suzaku-re.co.jp/39777/

QRコード
全体間取図
外観
東側道路(京都市道) 南から
東側道路(京都市道) 北から
南側道路(京都市道) 東から
南側道路(京都市道) 西から

室内の様子

母屋 間取図
2階 和室 約8帖(仏間・床の間・広縁)
2階 和室続き間(8帖+6帖)
欄間
2階 和室(仏間・床の間)広縁
南向き広縁
書庫(造り付)
箪笥(造り付)
離れ 間取図

買物・通学・近隣施設 等

スーパーマーケット サンダイコー 約150m
道の駅 ウッディ京北 約150m
京北郵便局 約80m
京都市 京北合同庁舎 約240m
京都銀行 北桑支店 約250m
京北交番 約350m
京都市立 京北 小・中 学校 約260m
大堰川(京北橋)約350m
全体間取図
このページを印刷

この物件のお問い合わせ

    お名前(必須)

    Eメール(必須)

    電話番号(必須)

    連絡希望時間帯

    郵便番号

    都道府
    県市区町村

    町丁目番地

    建物名部屋番号

    お問い合わせの内容をチェックしてください(必須)

    ご希望ご要望

    このサイトはreCAPTCHAによって保護されており、Googleのプライバシーポリシー利用規約が適用されます。

    シェアする
    タイトルとURLをコピーしました